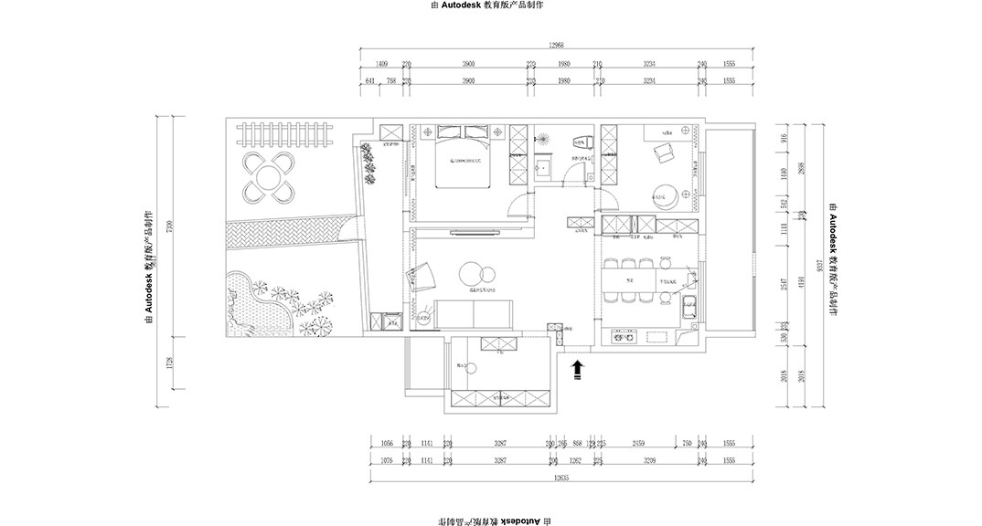
青建依山半島103㎡三室兩廳戶(hù)型平面布局圖
青建依山半島103㎡三室兩廳客廳簡(jiǎn)約風(fēng)格裝修案例效果圖
青建依山半島103㎡三室兩廳客廳電視簡(jiǎn)約風(fēng)格裝修案例效果圖
青建依山半島103㎡三室兩廳餐廳簡(jiǎn)約風(fēng)格裝修案例效果圖
青建依山半島103㎡三室兩廳臥室簡(jiǎn)約風(fēng)格裝修案例效果圖
